Ankerbrotfabrik

20 04 WB I Ia Ankerbrot Präsi Jka2 grafik02 web
20 04 WB I Ia Ankerbrot Präsi Jka2 grafik01 web

THE BAKERY OF THE FUTURE: The new Anker bread factory will be built on a plot in the Sofie-Lazarsfeld-Straße in Simmering by 2024.

Year

2020

Venue

Vienna

State

Competition

Category

Industrial

Size

13.542 m²

Year

Venue

State

Category

Size

2020

Vienna

Competition

Industrial

13.542 m²

Year

2020

Venue

Vienna

State

Competition

Category

Industrial

Size

13.542 m²

Ankerfabrik PXT 01d Rasen web

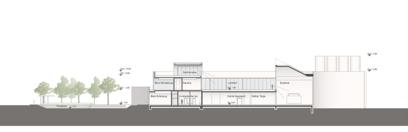
The neutral volume of the ANKERBROTFABRIK (former Anker Bakery), which in the interior has an impressive central courtyard, is accentuated externally in two ways:

On the one hand by the vertical element of the deep-freeze warehouse in the south-west, which can be seen from the airport, and on the other by the exposed horizontal element housing the administration, training and visitor area, which in the north-east is visible from the street. Both elements develop in a certain continuity out of the main volume, which, while showing restraint and simplicity, they lend an unmistakeably striking character.

20 04 WB I Ia Ankerbrot Präsi Jka2 schnitt B B web
20 04 WB I Ia Ankerbrot Präsi Jka2 schnitt A A web

The ANKERWELT is the central, identity-shaping space around which both visitors and staff are grouped. Presented as a three-storey atrium that receives daylight from above, it integrates everyone in the shared experience and the joint work.

20 04 WB I Ia Ankerbrot Präsi Jka2 grafik04 web

In contrast the flagship store is given a clear reference to outside space and to the landscape. This allows samples to be enjoyed outdoors. However, the main intention here is to clearly express the relationship between nature and culture: it is from the landscape, from the WHEATFIELDS that the raw material comes, which through the culture of baking is made into a foodstuff and a pleasure.

20 04 WB I Ia Ankerbrot Präsi Jka2 grafik05 web

This wide spanning character is also to be expressed in the design of the facades. On the one hand the closed long facades are clad with industrial metal panels in the Ankerbrot corporate identity colour, on the other hand the transverse facades, which are open or given openings, are clad with vertical wooden slats and in this way refer to the product’s natural origins.

20 04 WB I Ia Ankerbrot Präsi Jka2 ansicht nord web
20 04 WB I Ia Ankerbrot Präsi Jka2 ansicht sued web

Employing very simple measures this food industry complex is given a striking form, a world for visitors and working people is created, and a reference is made to a fundamental approach and a philosophy.

Ankerfabrik PXT 02c Heller web
DSC01350 edit1 web
DSC01363 edit1 web
DSC01340 edit1 web

Architecture

Pichler & Traupmann Architekten

Design team

Bartosz Lewandowski (teamleader)
Anna Gulinska
Jakub Kaczmarek
Milan Suchánek

Client

Bäckerei Ankerbrot GmbH

Production line planning

FactoryXperts, Eschlikon (CH)

Hard facts

Start of planning: 2020
Gross floor area: 13.542 m²
Function: Multifunctional building (offices, production hall, flagship store)
Scope: Architect selection procedure

Renderings

Patricia Bagienski, Vienna

Model

Jakub Kaczmarek

Award

1st Prize